Exclusivo piso en venta en Sant Gervasi-Galvany
desde
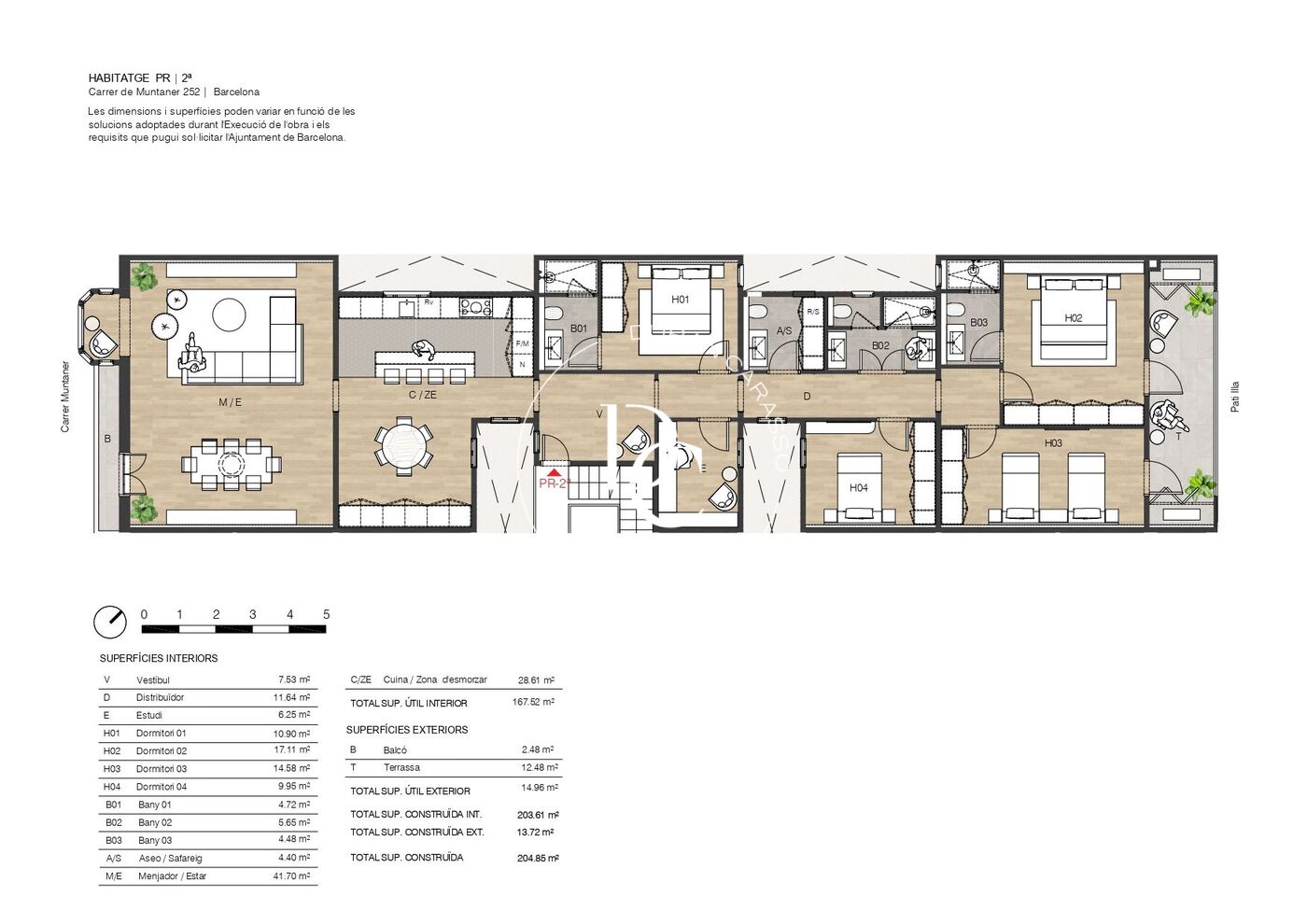
1.650.000 €
ON0148
Unidades
1
Superficie
205 m² - 205 m²
Barcelona
Sitges







































