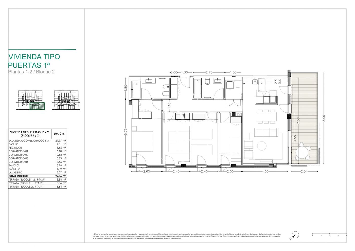
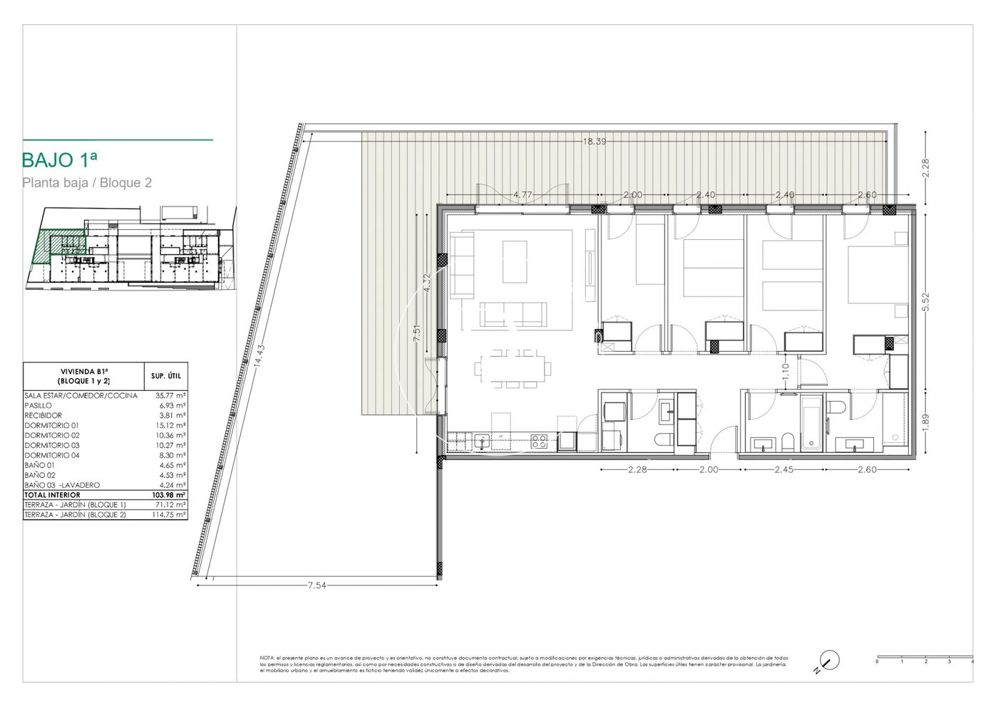
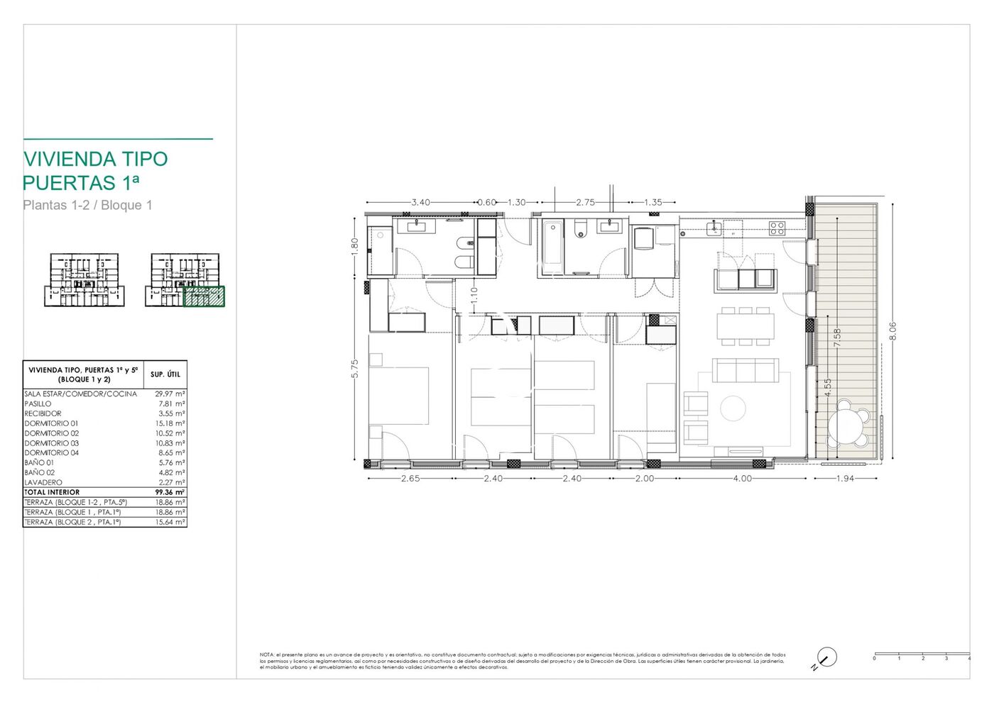
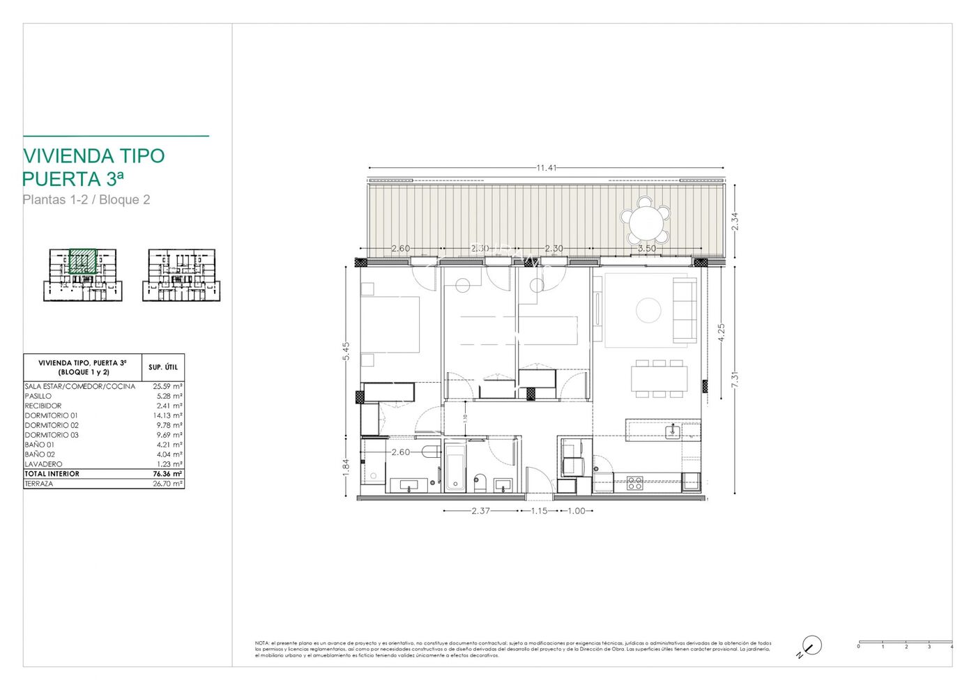
Nouvelle construction à louer à La Plana, Sitges
à partir de
1.700 €
ON0144
Unités
25
Surface
87 m² - 141 m²


























