Espaces commerciaux exclusifs de grand format sur l'Avenue Carlemany

65.000 €
AD1032-2
Sur. construite
1772 m²
Demande d'info

Visibilité, prestige et polyvalence sur la rue la plus prisée d'Escaldes-Engordany

Durán Carasso présente un impressionnant local commercial neuf, situé dans le tronçon le plus élevé et le plus exclusif de l’avenue Carlemany, considérée comme l’un des axes commerciaux les plus consolidés et prestigieux de la Principauté d’Andorre. Une localisation stratégique, entourée de grandes enseignes et bénéficiant d’un très fort passage piéton, garantissant une visibilité maximale et un excellent potentiel commercial.

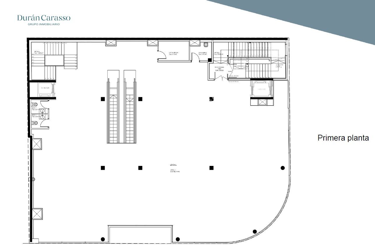
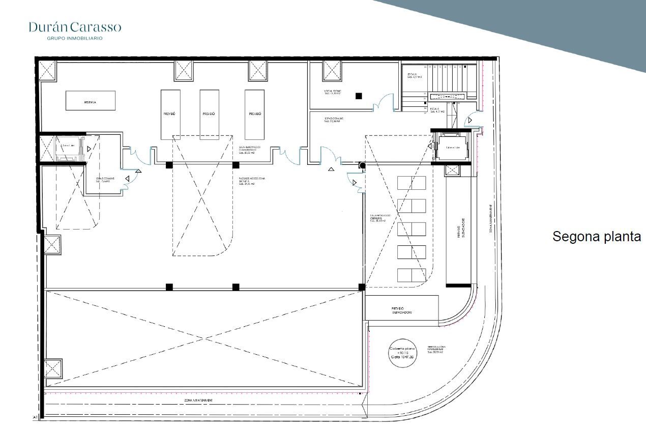
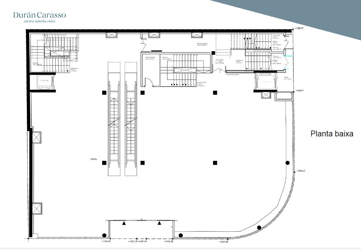
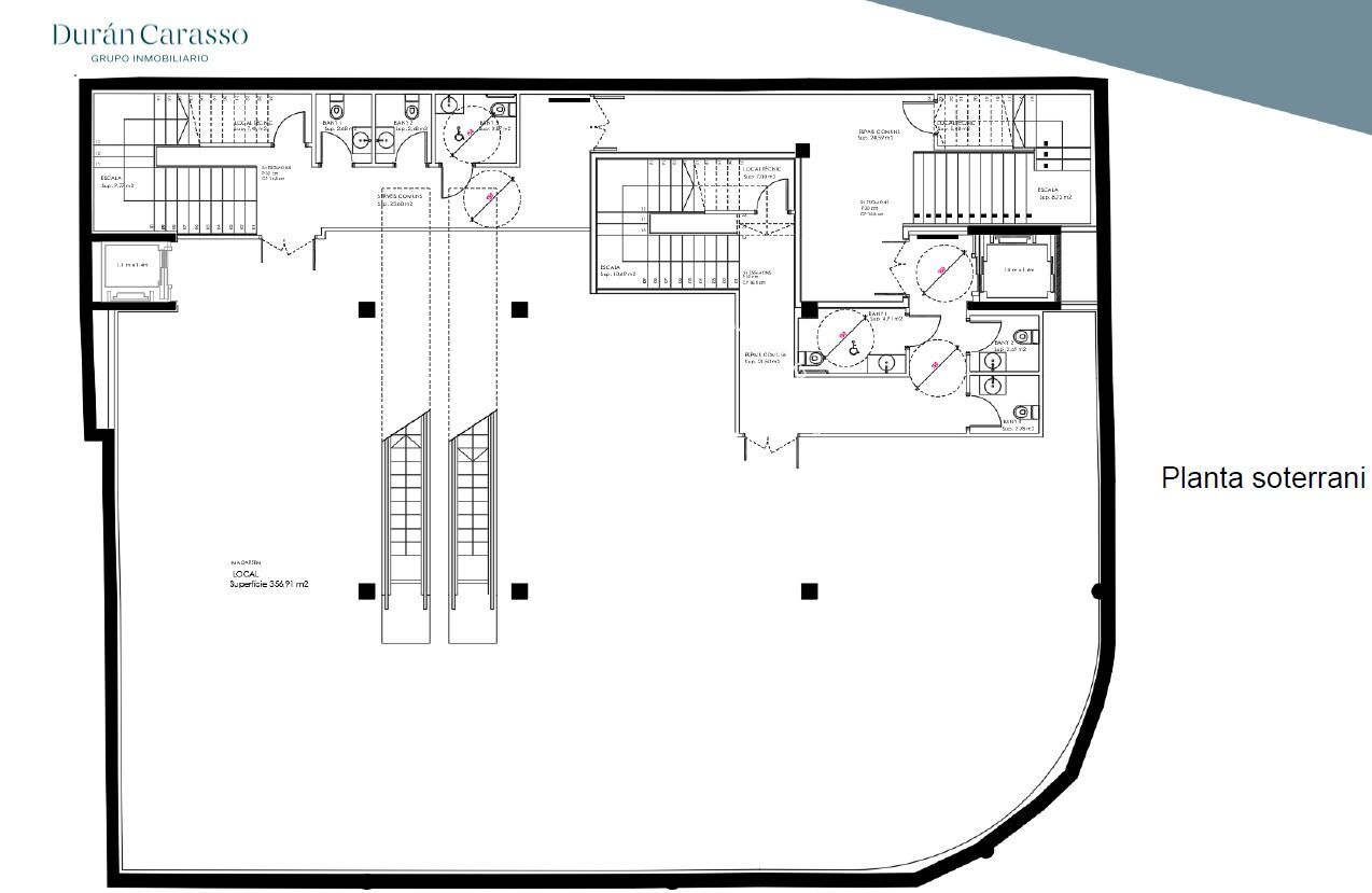
Le local, livré en état "brut", offre une surface totale de 1 770,25 m², répartie de manière très fonctionnelle sur quatre niveaux, permettant le développement de projets commerciaux ambitieux et polyvalents:

Sous-sol: 519,07 m², idéal pour un espace de stockage, de logistique, des zones techniques ou des espaces complémentaires.

Rez-de-chaussée: 551,78 m², avec accès direct depuis la rue, parfait pour l’accueil du public et une visibilité commerciale maximale.

Premier étage: 559,36 m², idéal pour étendre la surface de vente, aménager un showroom ou créer des espaces expérientiels.

Deuxième étage: 142,04 m², adapté à des bureaux, espaces privés, zones VIP ou de gestion.

Ce bien offre d’innombrables possibilités de personnalisation et s’adapte parfaitement aux besoins de grandes marques, d’enseignes de mode, de technologie, de luxe ou de toute entreprise souhaitant s’implanter dans un emplacement de référence et renforcer son image de marque.

S’établir à cette adresse constitue une véritable déclaration de prestige, de visibilité et de solidité commerciale, au cœur de l’une des zones les plus recherchées du pays.

Pour découvrir cet espace exclusif et explorer l’ensemble de ses possibilités, n’hésitez pas à nous contacter afin d’organiser une visite.

Propriétés similaires

Local exceptionnel à louer à Andorra la Vella
66.000 €
Ref. AD1032

Local exceptionnel à louer à Andorra la Vella

Andorra la Vella
Nous vous présentons un local commercial situé en plein cœur de l’avenue Meritxell, l’axe commercial le plus emblématique et le plus fréquenté d’Andorre-la-Vieille. Cette localisation est synonyme de visibilité, de prestige et d’un flux piéton constant, faisant de cet espace une opportunité exceptionnelle pour des projets de grande envergure. Livré en état "brut", le local offre une surface totale de 1 456,60 m², répartie entre le rez-de-chaussée et le premier étage, avec une configuration permettant de l’adapter à différents besoins et concepts commerciaux. Sa distribution et ses dimensions en font un espace idéal pour des restaurants de grande capacité, des concepts gastronomiques innovants, du retail, des showrooms ou des centres de services à forte demande. Installations et équipements à souligner: - 2 sorties de fumée, idéales pour les systèmes d’extraction et de ventilation. - 2 fosses pour séparateurs de graisses, indispensables pour des cuisines professionnelles. - Une fosse supplémentaire prévue pour l’installation d’un ascenseur, facilitant la connexion entre les niveaux et améliorant l’accessibilité pour la clientèle et le personnel. Ces caractéristiques rendent le local particulièrement adapté à des projets de restauration, de retail de grande surface, de showrooms ou de centres de services nécessitant un emplacement premium et une infrastructure technique déjà préparée. Si vous souhaitez implanter votre activité dans l’une des zones les plus recherchées et les plus fréquentées du pays, ce local représente une opportunité difficile à égaler. Son emplacement, ses dimensions et ses possibilités d’aménagement en font une option idéale pour des marques et des projets ambitieux.
Surface1.456 m²
Nous vous présentons un local commercial situé en plein cœur de l’avenue Meritxell, l’axe commercial le plus emblématique et le plus fréquenté d’Andorre-la-Vieille. Cette localisation est synonyme de visibilité, de prestige et d’un flux piéton constant, faisant de cet espace une opportunité exceptionnelle pour des projets de grande envergure. Livré en état "brut", le local offre une surface totale de 1 456,60 m², répartie entre le rez-de-chaussée et le premier étage, avec une configuration permettant de l’adapter à différents besoins et concepts commerciaux. Sa distribution et ses dimensions en font un espace idéal pour des restaurants de grande capacité, des concepts gastronomiques innovants, du retail, des showrooms ou des centres de services à forte demande. Installations et équipements à souligner: - 2 sorties de fumée, idéales pour les systèmes d’extraction et de ventilation. - 2 fosses pour séparateurs de graisses, indispensables pour des cuisines professionnelles. - Une fosse supplémentaire prévue pour l’installation d’un ascenseur, facilitant la connexion entre les niveaux et améliorant l’accessibilité pour la clientèle et le personnel. Ces caractéristiques rendent le local particulièrement adapté à des projets de restauration, de retail de grande surface, de showrooms ou de centres de services nécessitant un emplacement premium et une infrastructure technique déjà préparée. Si vous souhaitez implanter votre activité dans l’une des zones les plus recherchées et les plus fréquentées du pays, ce local représente une opportunité difficile à égaler. Son emplacement, ses dimensions et ses possibilités d’aménagement en font une option idéale pour des marques et des projets ambitieux.
Locaux commerciaux de luxe de 215 m2 à louer à Aiguadolç, Sitges
3.000 €
Ref. A5245

Locaux commerciaux de luxe de 215 m2 à louer à Aiguadolç, Sitges

Aiguadolç
Entreprise en pleine expansion située dans le port de l'une des villes les plus importantes et cosmopolites de Catalogne. C'est une entreprise avec de grandes possibilités d'augmenter rapidement son chiffre d'affaires, puisqu'elle fonctionne actuellement à 40% de ses possibilités. Avec un emplacement « premium » et le bon goût comme philosophie, ils font de ce commerce une opportunité unique de réaliser vos rêves. Il offre également la possibilité d'avoir une maison juste à côté et un entrepôt à seulement 20 minutes en voiture. Allez-vous le manquer ? N'hésitez pas à nous contacter pour aller le rencontrer.   Prix de transfert: 245 000 € Loyer: 3 000 € (avec terrasse incluse)
Surface215 m²
Entreprise en pleine expansion située dans le port de l'une des villes les plus importantes et cosmopolites de Catalogne. C'est une entreprise avec de grandes possibilités d'augmenter rapidement son chiffre d'affaires, puisqu'elle fonctionne actuellement à 40% de ses possibilités. Avec un emplacement « premium » et le bon goût comme philosophie, ils font de ce commerce une opportunité unique de réaliser vos rêves. Il offre également la possibilité d'avoir une maison juste à côté et un entrepôt à seulement 20 minutes en voiture. Allez-vous le manquer ? N'hésitez pas à nous contacter pour aller le rencontrer.   Prix de transfert: 245 000 € Loyer: 3 000 € (avec terrasse incluse)
Locaux commerciaux de grand format sur l'Avinguda Meritxell
35.000 €
Ref. AD1035

Locaux commerciaux de grand format sur l'Avinguda Meritxell

Andorra la Vella
Nous vous présentons deux locaux commerciaux situés en plein cœur de l’avenue Meritxell, l’axe commercial le plus emblématique et le plus fréquenté d’Andorre-la-Vieille. Cette localisation est synonyme de visibilité, de prestige et d’un flux piéton constant, faisant de ces espaces une opportunité exceptionnelle pour des projets de grande envergure. Les locaux sont livrés en état “brut” et offrent une surface totale de 1 456,60m², répartie sur le rez-de-chaussée et le premier étage, avec une configuration permettant de les adapter à différentes activités et concepts commerciaux. Leur distribution et leurs dimensions les rendent particulièrement adaptés à des restaurants de grande capacité, des concepts gastronomiques innovants, du retail, des showrooms ou des centres de services à forte demande. Distribution et surfaces: - Surface totale: 1 456,60m² - Répartis en deux locaux indépendants de 728,30m² chacun - Rez-de-chaussée et premier étage: espaces vastes et ouverts, parfaits pour aménager des zones de vente, de restauration ou d’exposition. Possibilité de location séparée ou conjointe: - Location d’un local: 35 000 € / mois - Location des deux locaux ensemble: 66 000 € / mois - Cette flexibilité permet de développer un projet d’envergure ou, à l’inverse, de commencer avec un seul espace Installations et équipements remarquables: - 2 sorties de fumée, idéales pour les systèmes d’extraction et de ventilation - 2 fosses pour séparateurs de graisse, indispensables pour des cuisines professionnelles - Une fosse supplémentaire prévue pour l’installation d’un ascenseur, facilitant la connexion entre les niveaux et améliorant l’accessibilité pour la clientèle et le personnel Ces caractéristiques rendent les locaux particulièrement adaptés à des projets de restauration, de retail de grande surface, de showrooms ou de centres de services nécessitant un emplacement premium et une structure technique déjà préparée. Si vous souhaitez implanter votre activité dans l’une des zones les plus demandées et les plus fréquentées du pays, ces locaux représentent une opportunité difficile à égaler. Leur emplacement, leurs dimensions et leurs possibilités d’adaptation en font une option idéale pour des marques et projets ambitieux.
Surface728 m²
Nous vous présentons deux locaux commerciaux situés en plein cœur de l’avenue Meritxell, l’axe commercial le plus emblématique et le plus fréquenté d’Andorre-la-Vieille. Cette localisation est synonyme de visibilité, de prestige et d’un flux piéton constant, faisant de ces espaces une opportunité exceptionnelle pour des projets de grande envergure. Les locaux sont livrés en état “brut” et offrent une surface totale de 1 456,60m², répartie sur le rez-de-chaussée et le premier étage, avec une configuration permettant de les adapter à différentes activités et concepts commerciaux. Leur distribution et leurs dimensions les rendent particulièrement adaptés à des restaurants de grande capacité, des concepts gastronomiques innovants, du retail, des showrooms ou des centres de services à forte demande. Distribution et surfaces: - Surface totale: 1 456,60m² - Répartis en deux locaux indépendants de 728,30m² chacun - Rez-de-chaussée et premier étage: espaces vastes et ouverts, parfaits pour aménager des zones de vente, de restauration ou d’exposition. Possibilité de location séparée ou conjointe: - Location d’un local: 35 000 € / mois - Location des deux locaux ensemble: 66 000 € / mois - Cette flexibilité permet de développer un projet d’envergure ou, à l’inverse, de commencer avec un seul espace Installations et équipements remarquables: - 2 sorties de fumée, idéales pour les systèmes d’extraction et de ventilation - 2 fosses pour séparateurs de graisse, indispensables pour des cuisines professionnelles - Une fosse supplémentaire prévue pour l’installation d’un ascenseur, facilitant la connexion entre les niveaux et améliorant l’accessibilité pour la clientèle et le personnel Ces caractéristiques rendent les locaux particulièrement adaptés à des projets de restauration, de retail de grande surface, de showrooms ou de centres de services nécessitant un emplacement premium et une structure technique déjà préparée. Si vous souhaitez implanter votre activité dans l’une des zones les plus demandées et les plus fréquentées du pays, ces locaux représentent une opportunité difficile à égaler. Leur emplacement, leurs dimensions et leurs possibilités d’adaptation en font une option idéale pour des marques et projets ambitieux.
Maison à louer à Sitges
3.400 €
Ref. 5063

Maison à louer à Sitges

Sitges
Duran Carasso a le plaisir de vous présenter cette fantastique et lumineuse maison de 240 m2 sur trois étages orientée plein sud à Urb Rocamar, à deux minutes du centre et des plages de Sitges. À l'arrivée, nous trouvons une généreuse entrée de jardin et un accès au garage. Nous entrons dans la maison par un hall généreux, à droite des toilettes, puis une cuisine entièrement équipée avec une sortie séparée sur le jardin à l'entrée. Dans cette même zone, nous avons un accès pratique au garage depuis l'intérieur de la maison. En continuant dans le hall, il y a un fantastique salon avec cheminée, sortie sur le jardin et une piscine spectaculaire entourée d'espaces verts. En montant à l'étage supérieur se trouve la zone nuit, où se trouvent quatre chambres, deux doubles et deux spacieuses simples, dont une avec accès à une terrasse. Au même étage, nous trouvons une salle de bain spacieuse avec baignoire jacuzzi et douche. Au dernier étage, dans le grenier, il y a une belle suite ensoleillée avec une salle de bain complète dotée d'une généreuse terrasse privée orientée plein sud avec une vue imprenable sur la piscine et le jardin. La maison dispose de tout le confort : climatisation avec pompe à chaleur centralisée par zones, alarme, détecteurs de fumée, menuiserie aluminium avec double vitrage et système de sécurité, adoucisseur d'eau, arrosage automatique, etc. Ne manquez pas cette opportunité et vivez là où vous méritez de vivre !   Logement situé dans une zone de marché résidentiel sous tension. Propriétaire non grand détenteur. Le logement n’a pas été loué auparavant. Surface construite : 238 m². Destination du contrat : résidence principale (longue durée). Indice étatique de référence des prix des loyers : logement d’une surface supérieure à 150 m², hors du champ habituel du système d’indices.
Chambres5
Salles de bain3
Surface240 m²
Parcelle278 m²
Duran Carasso a le plaisir de vous présenter cette fantastique et lumineuse maison de 240 m2 sur trois étages orientée plein sud à Urb Rocamar, à deux minutes du centre et des plages de Sitges. À l'arrivée, nous trouvons une généreuse entrée de jardin et un accès au garage. Nous entrons dans la maison par un hall généreux, à droite des toilettes, puis une cuisine entièrement équipée avec une sortie séparée sur le jardin à l'entrée. Dans cette même zone, nous avons un accès pratique au garage depuis l'intérieur de la maison. En continuant dans le hall, il y a un fantastique salon avec cheminée, sortie sur le jardin et une piscine spectaculaire entourée d'espaces verts. En montant à l'étage supérieur se trouve la zone nuit, où se trouvent quatre chambres, deux doubles et deux spacieuses simples, dont une avec accès à une terrasse. Au même étage, nous trouvons une salle de bain spacieuse avec baignoire jacuzzi et douche. Au dernier étage, dans le grenier, il y a une belle suite ensoleillée avec une salle de bain complète dotée d'une généreuse terrasse privée orientée plein sud avec une vue imprenable sur la piscine et le jardin. La maison dispose de tout le confort : climatisation avec pompe à chaleur centralisée par zones, alarme, détecteurs de fumée, menuiserie aluminium avec double vitrage et système de sécurité, adoucisseur d'eau, arrosage automatique, etc. Ne manquez pas cette opportunité et vivez là où vous méritez de vivre !   Logement situé dans une zone de marché résidentiel sous tension. Propriétaire non grand détenteur. Le logement n’a pas été loué auparavant. Surface construite : 238 m². Destination du contrat : résidence principale (longue durée). Indice étatique de référence des prix des loyers : logement d’une surface supérieure à 150 m², hors du champ habituel du système d’indices.
Immeuble de bureaux à louer dans le quartier technologique 22@ de Barcelone
95.348 €
Ref. S0428

Immeuble de bureaux à louer dans le quartier technologique 22@ de Barcelone

22@
Immeuble de bureaux à louer dans le quartier technologique 22@ de Barcelone Cet immeuble de bureaux haut de gamme, situé au cœur du quartier technologique 22@ de Barcelone, propose une infrastructure moderne et flexible, conçue pour répondre aux besoins des entreprises de toutes tailles. Avec deux entrées indépendantes, l'une sur la rue Tánger et l'autre sur le Passatge Ratés, la propriété allie fonctionnalité et design, intégrant des espaces verts et un lounge pour créer une ambiance accueillante pour les employés et les visiteurs. Le hall principal élégant accueille les occupants et les visiteurs, menant à des installations de haut niveau comprenant : Salles de réunion équipées Auditorium pour événements et présentations Casiers et vestiaires Kitchen Office : un espace conçu pour les pauses et les repas dans un cadre fonctionnel et détendu Un des points forts de cet immeuble est ses 1 500 m² de terrasses extérieures paysagées, réparties sur plusieurs niveaux, offrant un cadre idéal pour la détente et les événements professionnels. Avec un accent mis sur la mobilité durable, le bâtiment propose des places de parking pour voitures (avec bornes de recharge pour véhicules électriques), motos et vélos. Les espaces de bureaux sont ouverts, spacieux et baignés de lumière naturelle, créant un environnement de travail stimulant et productif. L'immeuble est conçu pour accueillir une seule entreprise ou être divisé en deux espaces indépendants pour différents occupants. En résumé, cette propriété allie emplacement stratégique, fonctionnalité, confort et durabilité, faisant d’elle un choix exceptionnel pour les entreprises cherchant un espace de bureaux haut de gamme à Barcelone. Pour plus d’informations, veuillez contacter l’équipe des investissements de Durán Carasso.
Surface4.334 m²
Immeuble de bureaux à louer dans le quartier technologique 22@ de Barcelone Cet immeuble de bureaux haut de gamme, situé au cœur du quartier technologique 22@ de Barcelone, propose une infrastructure moderne et flexible, conçue pour répondre aux besoins des entreprises de toutes tailles. Avec deux entrées indépendantes, l'une sur la rue Tánger et l'autre sur le Passatge Ratés, la propriété allie fonctionnalité et design, intégrant des espaces verts et un lounge pour créer une ambiance accueillante pour les employés et les visiteurs. Le hall principal élégant accueille les occupants et les visiteurs, menant à des installations de haut niveau comprenant : Salles de réunion équipées Auditorium pour événements et présentations Casiers et vestiaires Kitchen Office : un espace conçu pour les pauses et les repas dans un cadre fonctionnel et détendu Un des points forts de cet immeuble est ses 1 500 m² de terrasses extérieures paysagées, réparties sur plusieurs niveaux, offrant un cadre idéal pour la détente et les événements professionnels. Avec un accent mis sur la mobilité durable, le bâtiment propose des places de parking pour voitures (avec bornes de recharge pour véhicules électriques), motos et vélos. Les espaces de bureaux sont ouverts, spacieux et baignés de lumière naturelle, créant un environnement de travail stimulant et productif. L'immeuble est conçu pour accueillir une seule entreprise ou être divisé en deux espaces indépendants pour différents occupants. En résumé, cette propriété allie emplacement stratégique, fonctionnalité, confort et durabilité, faisant d’elle un choix exceptionnel pour les entreprises cherchant un espace de bureaux haut de gamme à Barcelone. Pour plus d’informations, veuillez contacter l’équipe des investissements de Durán Carasso.
Maison à vendre dans le quartier de Vinyet, Sitges
5.000 €
Ref. A5313

Maison à vendre dans le quartier de Vinyet, Sitges

Terramar
Maison à deux étages située dans le quartier de Vinyet, à seulement 5 minutes à pied de la plage. Cette maison présente les caractéristiques suivantes :. Il dispose de 6 chambres au total, ce qui en fait un endroit idéal pour les familles nombreuses ou pour ceux qui souhaitent disposer d'un espace supplémentaire pour les invités, les bureaux à domicile ou les salles de jeux. La propriété dispose de 6 salles de bains, garantissant que chaque chambre dispose de sa propre salle de bains, pratique et confortable. Des armoires encastrées sont incluses dans les chambres, ce qui facilite le rangement et aide à garder l'espace organisé et sans encombrement. L'orientation sud de la maison permet une excellente exposition au soleil tout au long de la journée, ce qui est particulièrement agréable dans les climats plus froids et en hiver. La propriété dispose d'une piscine, offrant une option rafraîchissante et divertissante pour les chaudes journées d'été. En plus de la piscine, la propriété dispose d'un jardin, parfait pour les activités de plein air, le jardinage ou simplement la détente en plein air. Le débarras offre un espace supplémentaire pour ranger des objets, des outils ou des équipements, contribuant ainsi à garder la maison organisée. Cette maison offre un emplacement privilégié à quelques minutes de la plage, ce qui en fait une option attrayante pour ceux qui souhaitent profiter d'un style de vie côtier et de toutes les commodités qui accompagnent une maison spacieuse avec de nombreuses chambres et salles de bains.
Chambres6
Salles de bain6
Surface717 m²
Parcelle1.323 m²
Maison à deux étages située dans le quartier de Vinyet, à seulement 5 minutes à pied de la plage. Cette maison présente les caractéristiques suivantes :. Il dispose de 6 chambres au total, ce qui en fait un endroit idéal pour les familles nombreuses ou pour ceux qui souhaitent disposer d'un espace supplémentaire pour les invités, les bureaux à domicile ou les salles de jeux. La propriété dispose de 6 salles de bains, garantissant que chaque chambre dispose de sa propre salle de bains, pratique et confortable. Des armoires encastrées sont incluses dans les chambres, ce qui facilite le rangement et aide à garder l'espace organisé et sans encombrement. L'orientation sud de la maison permet une excellente exposition au soleil tout au long de la journée, ce qui est particulièrement agréable dans les climats plus froids et en hiver. La propriété dispose d'une piscine, offrant une option rafraîchissante et divertissante pour les chaudes journées d'été. En plus de la piscine, la propriété dispose d'un jardin, parfait pour les activités de plein air, le jardinage ou simplement la détente en plein air. Le débarras offre un espace supplémentaire pour ranger des objets, des outils ou des équipements, contribuant ainsi à garder la maison organisée. Cette maison offre un emplacement privilégié à quelques minutes de la plage, ce qui en fait une option attrayante pour ceux qui souhaitent profiter d'un style de vie côtier et de toutes les commodités qui accompagnent une maison spacieuse avec de nombreuses chambres et salles de bains.
Nous utilisons nos propres cookies et ceux de tiers pour faire fonctionner notre site Web en toute sécurité et personnaliser son contenu. De même, nous utilisons des cookies pour mesurer et obtenir des données sur votre navigation et pour ajuster la publicité à vos goûts et préférences. Appuyez sur le bouton "Tout accepter" pour confirmer que vous avez lu et accepté les informations présentées. Pour gérer ou désactiver ces cookies, cliquez sur "Paramètres". Vous pouvez obtenir plus d'informations en consultant notre politique de cookies.
Modifier les cookies
Technique et Fonctionnel Toujours actif
Ce site Web utilise ses propres cookies pour collecter des informations afin d'améliorer nos services. Si vous continuez à naviguer, vous acceptez leur installation. L'utilisateur a la possibilité de configurer son navigateur, pouvant, s'il le souhaite, empêcher leur installation sur son disque dur, même s'il doit garder à l'esprit qu'une telle action peut entraîner des difficultés de navigation sur le site.
Analyse et Personnalisation
Ils permettent le suivi et l'analyse du comportement des utilisateurs de ce site. Les informations collectées via ce type de cookies sont utilisées pour mesurer l'activité du Web pour l'élaboration des profils de navigation des utilisateurs afin d'introduire des améliorations basées sur l'analyse des données d'utilisation effectuée par les utilisateurs du service. . Ils nous permettent de sauvegarder les informations de préférence de l'utilisateur pour améliorer la qualité de nos services et offrir une meilleure expérience grâce aux produits recommandés.
Marketing et Publicité
Ces cookies sont utilisés pour stocker des informations sur les préférences et les choix personnels de l'utilisateur grâce à l'observation continue de ses habitudes de navigation. Grâce à eux, nous pouvons connaître les habitudes de navigation sur le site Web et afficher des publicités liées au profil de navigation de l'utilisateur.