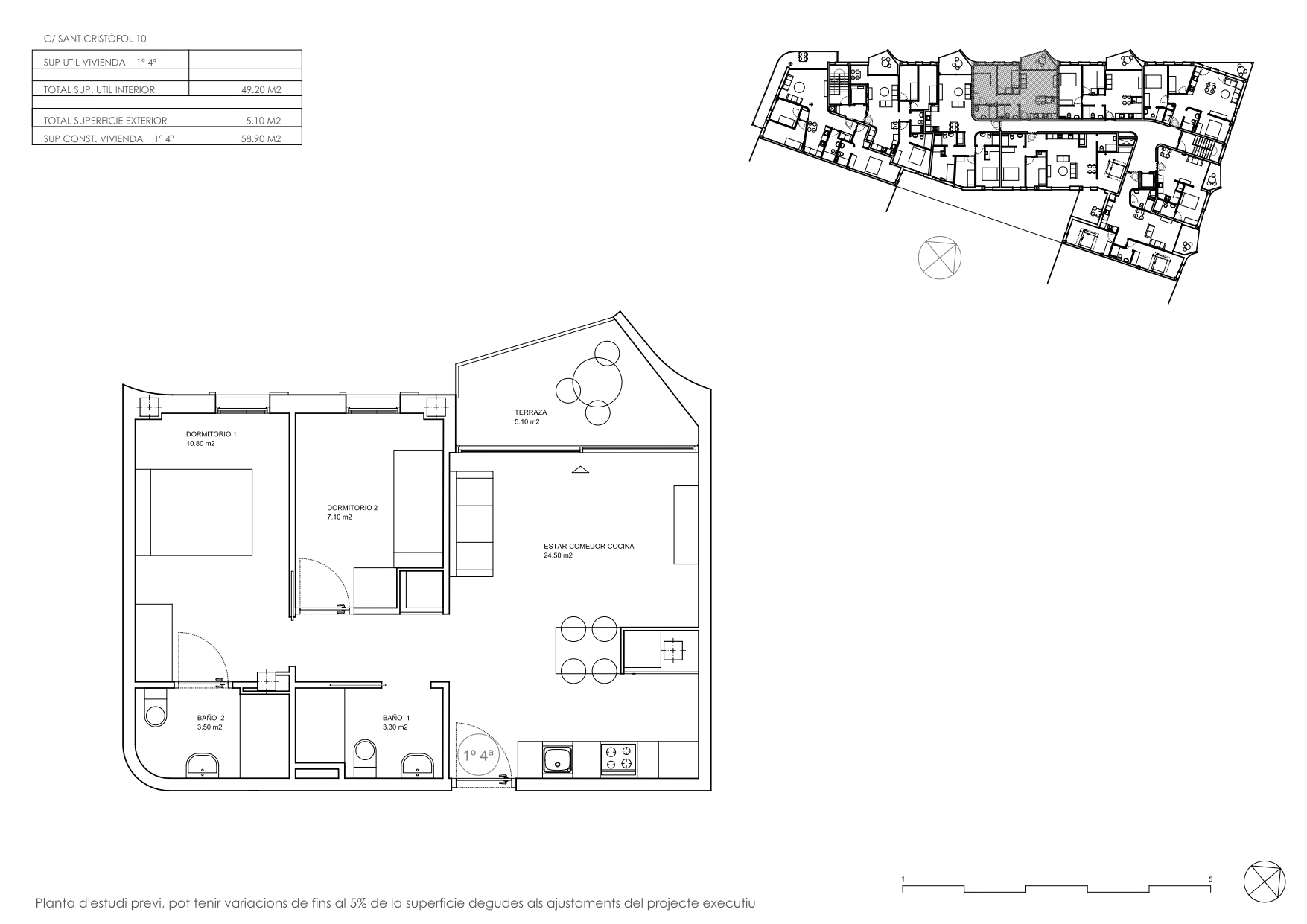
Oasis II - Vilanova i la Geltrú Centre
from
211,207 €
ON0129
Units
14
Surface
41 m² - 93 m²
Barcelona
Sitges











