Fantastic apartment in L'Esquerra de l´Eixample

994,000 €
6234
Bedrooms
3
Bathrooms
2
Sur. built
114 m²
Sur. util
96 m²
Request more info

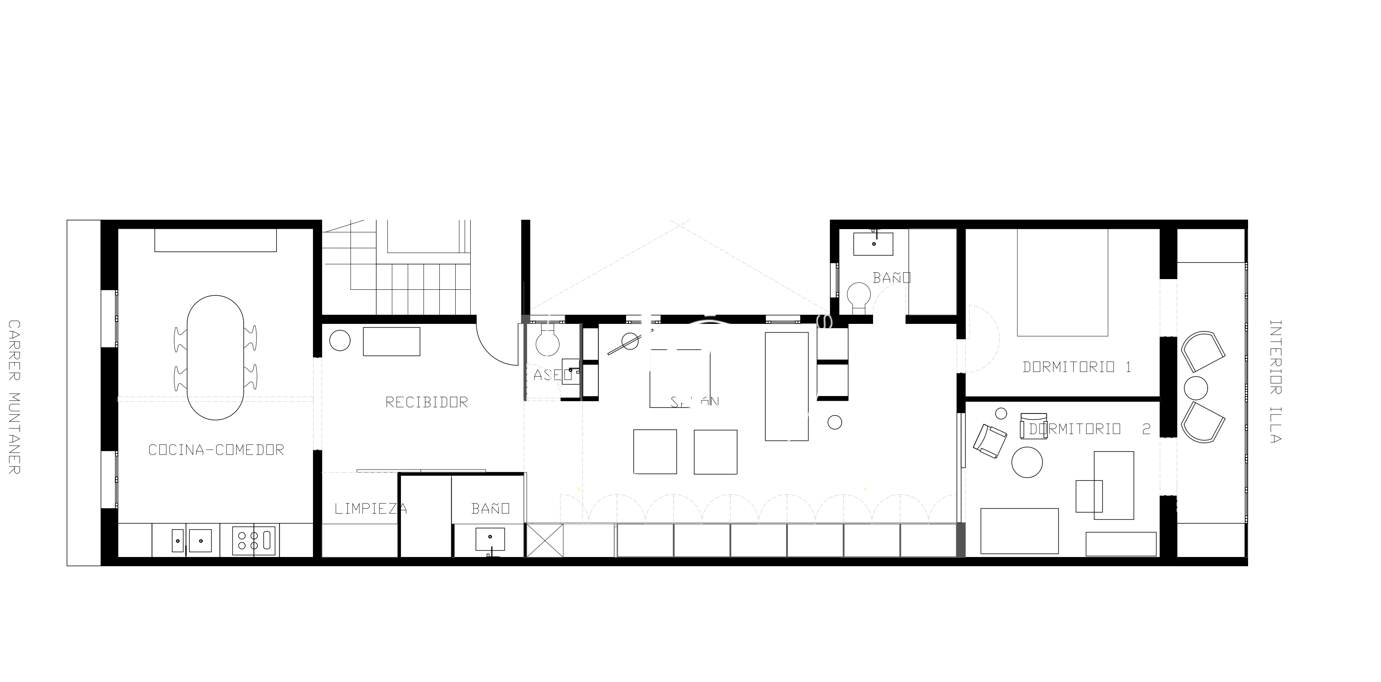
In the heart of Eixample Esquerra, an apartment with genuine Modernist character is offered, preserved in excellent condition. It features high ceilings with handcrafted moldings, original hydraulic tile floors, and balconies that provide natural light and open views over the neighborhood. The property stands out for its brightness, architectural charm, and great potential for customization.

Its current layout allows for 2 to 3 bedrooms, including a main suite, with the possibility to expand or adapt spaces according to individual needs. We have professional redesign proposals available that showcase different renovation possibilities to optimize the home.

Located in a building with an elevator, just a few steps from Avenida Diagonal and close to Passeig de Gràcia, this apartment combines neighborhood living with immediate access to shops, restaurants, services, galleries, and public transport.

A unique opportunity under one million euros to live or invest in a home with soul, in one of Barcelona’s most authentic and sought-after areas.

If you are looking for an apartment with personality, design, and all the comforts in an unbeatable location, contact Durán Carasso to arrange a viewing. Discover an exceptional property where luxury and comfort come together.

Live where you deserve to live.

Property features

lift
furnished
terrace
balcony
built in closets
outside
Good condition
Floor (pr)
Year of construction (1930)
Energy certificate
Energy consumption Kw h/m² year
  • 169.00 A
  • 169.00 B
  • 169.00 C
  • 169.00 D
  • 169.00 E
  • 169.00 F
  • 169.00 G
Emissions Co/m² year
  • 35.00 A
  • 35.00 B
  • 35.00 C
  • 35.00 D
  • 35.00 E
  • 35.00 F
  • 35.00 G

About L´Antiga Esquerra de l´Eixample

The neighborhood of l'Antiga Esquerra de l'Eixample is a residential district located in the heart of Barcelona, known for its wide avenues, modernist architecture, and tranquil atmosphere, providing an exceptional quality of life. L'Antiga Esquerra de l'Eixample blends the elegance of its historical buildings and regal estates with modern amenities and an excellent gastronomic offering.

Related properties

 Flat with terrace for sale in El Poblenou, Barcelona
969.000 €
Ref. 5989

Flat with terrace for sale in El Poblenou, Barcelona

El Poblenou
The old jewelry workshop of Poble Nou, where Hermès and Tiffany produced their most special pieces, is being reinvented to host spacious and bright homes designed to enjoy the new Barcelona. Inspired by the best international architecture, these properties open up to gardens and terraces. Spaces to express your personality and creativity. A brutalist structure combined with natural materials to enjoy light and space freely. Modern minimalist and functional interiors. Materials chosen to enhance the warmth and luxury of the space. The central garden floods the homes with light and fresh air. What was once the center of the old workshop is now a green lung that breathes life into all the homes. An oasis of tranquility and nature to escape the city's pace. This ground floor of 110 m² plus 86 m² of terrace offers cozy spaces, a living-dining room, two bedrooms, and two full bathrooms. The property includes a storage room, and there is space in the garden to leave bicycles. On the terrace, there is a panoramic pool with a solarium from which to enjoy the Barcelona skyline. Vive donde mereces vivir
Bedrooms2
Bathrooms2
Surface109 m²
The old jewelry workshop of Poble Nou, where Hermès and Tiffany produced their most special pieces, is being reinvented to host spacious and bright homes designed to enjoy the new Barcelona. Inspired by the best international architecture, these properties open up to gardens and terraces. Spaces to express your personality and creativity. A brutalist structure combined with natural materials to enjoy light and space freely. Modern minimalist and functional interiors. Materials chosen to enhance the warmth and luxury of the space. The central garden floods the homes with light and fresh air. What was once the center of the old workshop is now a green lung that breathes life into all the homes. An oasis of tranquility and nature to escape the city's pace. This ground floor of 110 m² plus 86 m² of terrace offers cozy spaces, a living-dining room, two bedrooms, and two full bathrooms. The property includes a storage room, and there is space in the garden to leave bicycles. On the terrace, there is a panoramic pool with a solarium from which to enjoy the Barcelona skyline. Vive donde mereces vivir
111 sqm flat with views for sale in El Gòtic, Barcelona
490.000 €
Ref. 5805

111 sqm flat with views for sale in El Gòtic, Barcelona

El Gòtic
This listed building is located in Barcelona's emblematic Gothic Quarter, just a few metres from Plaça Sant Jaume, the Cathedral and Las Ramblas, and has been fully refurbished using top quality materials. It is made up of five flats, one per floor, all with balconies overlooking Carrer Escudellers and with direct access from the lift to each flat with an exclusive code.  The refurbishment, in a modern style, has preserved the building's own elements, such as its high ceilings, and the high quality of the finishes gives the flat a cosmopolitan yet elegant image. The flat has 2 complete bathrooms and 2 double bedrooms with built-in wardrobes (one of them en-suite with bathroom). Living-dining room with fully-equipped open-plan kitchen: induction hob, microwave, oven, dishwasher and fridge (with column for washing machine and dryer). dryer).  It also has soundproof windows. Air conditioning and aerothermal hot water supply, alarm and all brand new installations. Live in an emblematic, central environment and the comfort of a new contemporary building. #LiveWhereYouWantLive 
Bedrooms2
Bathrooms2
Surface111 m²
This listed building is located in Barcelona's emblematic Gothic Quarter, just a few metres from Plaça Sant Jaume, the Cathedral and Las Ramblas, and has been fully refurbished using top quality materials. It is made up of five flats, one per floor, all with balconies overlooking Carrer Escudellers and with direct access from the lift to each flat with an exclusive code.  The refurbishment, in a modern style, has preserved the building's own elements, such as its high ceilings, and the high quality of the finishes gives the flat a cosmopolitan yet elegant image. The flat has 2 complete bathrooms and 2 double bedrooms with built-in wardrobes (one of them en-suite with bathroom). Living-dining room with fully-equipped open-plan kitchen: induction hob, microwave, oven, dishwasher and fridge (with column for washing machine and dryer). dryer).  It also has soundproof windows. Air conditioning and aerothermal hot water supply, alarm and all brand new installations. Live in an emblematic, central environment and the comfort of a new contemporary building. #LiveWhereYouWantLive 
Central ground floor apartment for sale in La Plana
745.000 €
Ref. 5647D

Central ground floor apartment for sale in La Plana

La Plana
  Ground floor apartment in La Plana, Sitges, with two terraces, four bedrooms and communal swimming pool Located in La Plana Este, one of the most pleasant and sought-after residential areas in Sitges, this property offers the perfect balance between peace and quiet, comfort and proximity to everything. It is a modern, well-planned neighbourhood with wide streets, green areas and a family-friendly atmosphere. From here, the town centre and the beaches are easily accessible, and all everyday services are close at hand, along with excellent connections to Barcelona and the airport. The property is a ground floor apartment that stands out for its two private terraces, ideal for enjoying Sitges’ mild climate all year round. These outdoor spaces are perfect for relaxing, sharing meals outdoors or simply enjoying natural light. The interior layout is practical and comfortable, clearly separating the living area from the sleeping area. The living-dining room is spacious and bright, with direct access to one of the terraces and a seamless connection to the open-plan kitchen, a functional space ideal for everyday living and entertaining. The sleeping area features four bedrooms. The main bedroom is a pleasant suite made up of two rooms, with a dressing area, an exterior bathroom and access to a large private terrace that offers plenty of privacy. There is also a double exterior bedroom with built-in wardrobes and two single bedrooms, also exterior and with wardrobes, which can easily be adapted as bedrooms, a home office or multipurpose rooms. This area also includes a second full bathroom with a bathtub and a convenient laundry/utility area. The building is part of a quiet and well-maintained community, with a sunny communal swimming pool, perfect for relaxing or enjoying time with family. The price includes a parking space and a 4 m² storage room, adding extra convenience and storage space. Living in Sitges means enjoying a unique setting between the sea and the mountains, a Mediterranean lifestyle, a vibrant cultural scene and excellent dining options, all while benefiting from a relaxed and high-quality way of life.
Bedrooms4
Bathrooms2
Surface146 m²
  Ground floor apartment in La Plana, Sitges, with two terraces, four bedrooms and communal swimming pool Located in La Plana Este, one of the most pleasant and sought-after residential areas in Sitges, this property offers the perfect balance between peace and quiet, comfort and proximity to everything. It is a modern, well-planned neighbourhood with wide streets, green areas and a family-friendly atmosphere. From here, the town centre and the beaches are easily accessible, and all everyday services are close at hand, along with excellent connections to Barcelona and the airport. The property is a ground floor apartment that stands out for its two private terraces, ideal for enjoying Sitges’ mild climate all year round. These outdoor spaces are perfect for relaxing, sharing meals outdoors or simply enjoying natural light. The interior layout is practical and comfortable, clearly separating the living area from the sleeping area. The living-dining room is spacious and bright, with direct access to one of the terraces and a seamless connection to the open-plan kitchen, a functional space ideal for everyday living and entertaining. The sleeping area features four bedrooms. The main bedroom is a pleasant suite made up of two rooms, with a dressing area, an exterior bathroom and access to a large private terrace that offers plenty of privacy. There is also a double exterior bedroom with built-in wardrobes and two single bedrooms, also exterior and with wardrobes, which can easily be adapted as bedrooms, a home office or multipurpose rooms. This area also includes a second full bathroom with a bathtub and a convenient laundry/utility area. The building is part of a quiet and well-maintained community, with a sunny communal swimming pool, perfect for relaxing or enjoying time with family. The price includes a parking space and a 4 m² storage room, adding extra convenience and storage space. Living in Sitges means enjoying a unique setting between the sea and the mountains, a Mediterranean lifestyle, a vibrant cultural scene and excellent dining options, all while benefiting from a relaxed and high-quality way of life.
Renovated, bright, and quiet apartment in Galvany
1.100.000 €
Ref. 6169

Renovated, bright, and quiet apartment in Galvany

Sant Gervasi - Galvany
This exclusive property at the intersection of Mariano Cubí and Aribau streets is this elegant home located on the third floor of a stately building with character. It also offers the convenience of a parking space in the same building, a highly appreciated asset in the area.  The property is currently undergoing a complete renovation as a new contemporary design, executed with top-quality materials and exquisite attention to detail. It is delivered fully furnished and equipped, ready to move in, offering a sophisticated home that combines comfort and style in every room.  The interior layout is organized into three double bedrooms, two of which are en suite, along with three full bathrooms with a refined aesthetic. The day area features a spacious, bright, and elegant living-dining room that opens onto a private terrace, perfect for relaxing or sharing moments outdoors.  Integrated into this area, the open kitchen, with a contemporary design and fully equipped, provides modernity and functionality, making it an ideal place for both everyday life and entertaining.  Overall, this is a home that combines comfort, exclusivity, and design, conceived to enjoy an urban lifestyle with all the advantages of a privileged location.  The property is located in the heart of Galvany, one of Barcelona's most sought-after areas, known for its elegance, its gastronomic offerings, and the vitality of its urban life. Mariano Cubí Street, along with Aribau Street, is surrounded by signature restaurants, charming cafes, and exclusive boutiques, and is just steps away from emblematic city spots such as Avenida Diagonal and Passeig de Gràcia.  The neighborhood combines residential tranquility with a wide range of services such as municipal markets, schools, health centers, gyms, and leisure areas that guarantee a practical and comfortable life.  The transport links are unbeatable. Metro: Just a few minutes' walk from Diagonal (L3, L5) and Hospital Clínic (L5) stations. Ferrocarrils de la Generalitat (FGC) trains: With a stop very close to Gràcia or Muntaner, connecting in just a few minutes to Plaza Cataluña or to the outskirts of Sabadell and Terrassa. Buses: Multiple lines connect throughout the city. Access: Quick access to the ring roads and the airport thanks to its strategic location.  In short, an exceptional property in one of Barcelona's most desirable areas, the Galvany neighborhood, which combines design, comfort, and an unbeatable location, ideal for those looking for a move-in ready home in the city center.  ViveDondeMerecesVivir 
Bedrooms3
Bathrooms3
Surface108 m²
This exclusive property at the intersection of Mariano Cubí and Aribau streets is this elegant home located on the third floor of a stately building with character. It also offers the convenience of a parking space in the same building, a highly appreciated asset in the area.  The property is currently undergoing a complete renovation as a new contemporary design, executed with top-quality materials and exquisite attention to detail. It is delivered fully furnished and equipped, ready to move in, offering a sophisticated home that combines comfort and style in every room.  The interior layout is organized into three double bedrooms, two of which are en suite, along with three full bathrooms with a refined aesthetic. The day area features a spacious, bright, and elegant living-dining room that opens onto a private terrace, perfect for relaxing or sharing moments outdoors.  Integrated into this area, the open kitchen, with a contemporary design and fully equipped, provides modernity and functionality, making it an ideal place for both everyday life and entertaining.  Overall, this is a home that combines comfort, exclusivity, and design, conceived to enjoy an urban lifestyle with all the advantages of a privileged location.  The property is located in the heart of Galvany, one of Barcelona's most sought-after areas, known for its elegance, its gastronomic offerings, and the vitality of its urban life. Mariano Cubí Street, along with Aribau Street, is surrounded by signature restaurants, charming cafes, and exclusive boutiques, and is just steps away from emblematic city spots such as Avenida Diagonal and Passeig de Gràcia.  The neighborhood combines residential tranquility with a wide range of services such as municipal markets, schools, health centers, gyms, and leisure areas that guarantee a practical and comfortable life.  The transport links are unbeatable. Metro: Just a few minutes' walk from Diagonal (L3, L5) and Hospital Clínic (L5) stations. Ferrocarrils de la Generalitat (FGC) trains: With a stop very close to Gràcia or Muntaner, connecting in just a few minutes to Plaza Cataluña or to the outskirts of Sabadell and Terrassa. Buses: Multiple lines connect throughout the city. Access: Quick access to the ring roads and the airport thanks to its strategic location.  In short, an exceptional property in one of Barcelona's most desirable areas, the Galvany neighborhood, which combines design, comfort, and an unbeatable location, ideal for those looking for a move-in ready home in the city center.  ViveDondeMerecesVivir 
Apartment for sale in Diagonal Mar – Illa del Cel
1.050.000 €
Ref. 6202

Apartment for sale in Diagonal Mar – Illa del Cel

Diagonal Mar/Front Marítim del Poblenou
Exclusive home in Illa del Cel, one of the most prestigious residential complexes in Diagonal Mar, just 5 minutes from the seafront promenade and very close to Llevant Beach. This brand-new apartment has 137 m² of built area, distributed in 3 bedrooms (one en suite, one double, and one large single) and 2 full bathrooms. Its design offers a comfortable, functional, and elegant space, ideal for enjoying the urban lifestyle without sacrificing comfort. Located on the 20th floor of a modern building, it stands out for its great light and impressive views of the sea and the city. From its spacious 10 m² terrace, you can enjoy the sun from sunrise to midday. It faces northeast. The kitchen-diner, also with sea views, is practical and well-designed, designed for daily enjoyment and family living. The spacious and inviting living-dining room becomes the heart of the home, perfect for relaxing or sharing time with family and friends. The property is located in a residential complex with common areas and services, including high-quality facilities, including: 24-hour security. A 180 m² swimming pool with a sundeck. A children's area and extensive garden areas. A fully equipped gym, sauna, and changing rooms. A multipurpose room for activities or events. This property includes a large parking space on the same property with direct access. A second parking space is optionally available. The property's location is privileged. Located in the heart of Diagonal Mar, this apartment offers a modern and well-connected environment, with immediate access to the Ronda Litoral, the metro, tram, and buses that will quickly take you to different parts of Barcelona. It is very close to a shopping center, shops, restaurants, and green areas, and is just minutes from the sea. It is the ideal option for those seeking an active, contemporary lifestyle by the beach. Contact us to schedule a visit and discover your new home in Diagonal Mar. ViveDondeMerecesVivir 
Bedrooms3
Bathrooms2
Surface113 m²
Exclusive home in Illa del Cel, one of the most prestigious residential complexes in Diagonal Mar, just 5 minutes from the seafront promenade and very close to Llevant Beach. This brand-new apartment has 137 m² of built area, distributed in 3 bedrooms (one en suite, one double, and one large single) and 2 full bathrooms. Its design offers a comfortable, functional, and elegant space, ideal for enjoying the urban lifestyle without sacrificing comfort. Located on the 20th floor of a modern building, it stands out for its great light and impressive views of the sea and the city. From its spacious 10 m² terrace, you can enjoy the sun from sunrise to midday. It faces northeast. The kitchen-diner, also with sea views, is practical and well-designed, designed for daily enjoyment and family living. The spacious and inviting living-dining room becomes the heart of the home, perfect for relaxing or sharing time with family and friends. The property is located in a residential complex with common areas and services, including high-quality facilities, including: 24-hour security. A 180 m² swimming pool with a sundeck. A children's area and extensive garden areas. A fully equipped gym, sauna, and changing rooms. A multipurpose room for activities or events. This property includes a large parking space on the same property with direct access. A second parking space is optionally available. The property's location is privileged. Located in the heart of Diagonal Mar, this apartment offers a modern and well-connected environment, with immediate access to the Ronda Litoral, the metro, tram, and buses that will quickly take you to different parts of Barcelona. It is very close to a shopping center, shops, restaurants, and green areas, and is just minutes from the sea. It is the ideal option for those seeking an active, contemporary lifestyle by the beach. Contact us to schedule a visit and discover your new home in Diagonal Mar. ViveDondeMerecesVivir 
Bright ground floor apartment for sale in Alp, Cerdanya
460.000 €
Ref. 6208

Bright ground floor apartment for sale in Alp, Cerdanya

Alp
In the charming village of Alp, in the lower part of town, close to the supermarket, restaurants, pharmacy, and the church—and just 7 km from the ski resorts of La Molina and Masella—Durán Carasso presents this beautiful and cozy fully renovated ground floor apartment in a quiet community of just 8 homes. Upon entering the property, a welcoming foyer leads to the day area, where we find a spacious and bright living-dining room with a fireplace, perfect for relaxing in a warm and inviting atmosphere. From here, there is direct access to the garden, an ideal outdoor space to enjoy fresh air, open views, and the peace of the surroundings. The open-plan kitchen, featuring a central island, offers a generous and open space to enjoy memorable moments with family or friends. The night area includes three bedrooms: one en-suite double room, and two additional bedrooms that share a second full bathroom. The apartment features gas heating, a parking space, and a storage room. Located in the heart of Cerdanya, Alp benefits from a pleasant climate and stunning landscapes. Quality of life in Alp is excellent, thanks to its safe environment, quality services, and welcoming community. This picturesque village is perfect for families and nature lovers.
Bedrooms3
Bathrooms2
Surface104 m²
In the charming village of Alp, in the lower part of town, close to the supermarket, restaurants, pharmacy, and the church—and just 7 km from the ski resorts of La Molina and Masella—Durán Carasso presents this beautiful and cozy fully renovated ground floor apartment in a quiet community of just 8 homes. Upon entering the property, a welcoming foyer leads to the day area, where we find a spacious and bright living-dining room with a fireplace, perfect for relaxing in a warm and inviting atmosphere. From here, there is direct access to the garden, an ideal outdoor space to enjoy fresh air, open views, and the peace of the surroundings. The open-plan kitchen, featuring a central island, offers a generous and open space to enjoy memorable moments with family or friends. The night area includes three bedrooms: one en-suite double room, and two additional bedrooms that share a second full bathroom. The apartment features gas heating, a parking space, and a storage room. Located in the heart of Cerdanya, Alp benefits from a pleasant climate and stunning landscapes. Quality of life in Alp is excellent, thanks to its safe environment, quality services, and welcoming community. This picturesque village is perfect for families and nature lovers.
Elegant Apartment with Terrace in La Plana, Sitges
649.000 €
Ref. 6244

Elegant Apartment with Terrace in La Plana, Sitges

La Plana
Located in the sought-after La Plana area of Sitges, this property offers an exceptional balance of contemporary design, comfort and lifestyle. Set within a recently built building, the apartment boasts 95 sqm of usable space and a generous 14 sqm terrace, perfect for enjoying the Mediterranean climate year-round. Its bright and fully exterior layout enhances the sense of openness throughout the home. The property features three bedrooms, including a master suite, designed to combine privacy and functionality. The independent kitchen, modern and well-appointed, has direct access to the terrace, as does the spacious living-dining area, creating a seamless indoor-outdoor flow ideal for everyday living and entertaining. La Plana stands out as one of Sitges’ most desirable residential areas thanks to its tranquillity, well-planned surroundings and proximity to all essential services. Its wide green spaces, family-friendly atmosphere and easy access to the town centre, beaches and main transport links make it an ideal location for both permanent living and investment. The community offers a beautifully maintained landscaped garden with swimming pool, providing a relaxed and exclusive environment, includes a parking space,  a storage room and concierge service.  Living in a property of this type means embracing a comfortable and refined lifestyle, where light, outdoor spaces and communal areas come together to enhance well-being and everyday enjoyment. Sitges combines Mediterranean charm, a vibrant cultural and gastronomic scene and excellent connections to Barcelona, offering an exceptional quality of life by the sea.
Bedrooms3
Bathrooms2
Surface133 m²
Located in the sought-after La Plana area of Sitges, this property offers an exceptional balance of contemporary design, comfort and lifestyle. Set within a recently built building, the apartment boasts 95 sqm of usable space and a generous 14 sqm terrace, perfect for enjoying the Mediterranean climate year-round. Its bright and fully exterior layout enhances the sense of openness throughout the home. The property features three bedrooms, including a master suite, designed to combine privacy and functionality. The independent kitchen, modern and well-appointed, has direct access to the terrace, as does the spacious living-dining area, creating a seamless indoor-outdoor flow ideal for everyday living and entertaining. La Plana stands out as one of Sitges’ most desirable residential areas thanks to its tranquillity, well-planned surroundings and proximity to all essential services. Its wide green spaces, family-friendly atmosphere and easy access to the town centre, beaches and main transport links make it an ideal location for both permanent living and investment. The community offers a beautifully maintained landscaped garden with swimming pool, providing a relaxed and exclusive environment, includes a parking space,  a storage room and concierge service.  Living in a property of this type means embracing a comfortable and refined lifestyle, where light, outdoor spaces and communal areas come together to enhance well-being and everyday enjoyment. Sitges combines Mediterranean charm, a vibrant cultural and gastronomic scene and excellent connections to Barcelona, offering an exceptional quality of life by the sea.
We use our own and third-party cookies to make our website work safely and personalize its content. Likewise, we use cookies to measure and obtain data on your navigation and to adjust advertising to your tastes and preferences. Press the "Accept all" button to confirm that you have read and accepted the information presented. To manage or disable these cookies, click on "Configuration". For more information see our cookies policy.
Modify cookies
Technical and functional Always active
This website uses its own Cookies to collect information in order to improve our services. If you continue browsing, you accept their installation. The user has the possibility of configuring his browser, being able, if he so wishes, to prevent them from being installed on his hard drive, although he must bear in mind that such action may cause difficulties in navigating the website.
Analytics and personalization
They allow the monitoring and analysis of the behavior of the users of this website. The information collected through this type of cookies is used to measure the activity of the web for the elaboration of user navigation profiles in order to introduce improvements based on the analysis of the usage data made by the users of the service. They allow us to save the user's preference information to improve the quality of our services and to offer a better experience through recommended products.
Marketing and advertising
These cookies are used to store information about the preferences and personal choices of the user through the continuous observation of their browsing habits. Thanks to them, we can know the browsing habits on the website and display advertising related to the user's browsing profile.